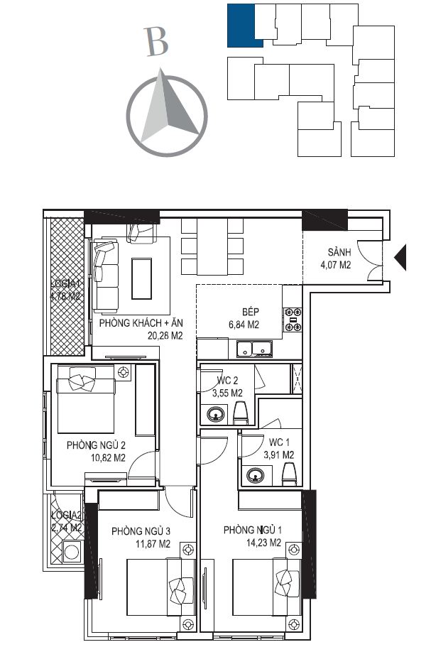
r2-01